
園區先導區約5000畝,根據園藝世界·農藝高科的規劃理念,承擔園區(南片)總規中“一體”即園藝產業綜合體功能,重點規劃:一心(綜合服務中心)、兩帶(高速景觀帶、濱水景觀帶)、四區(園藝科技示范園、都市農業公園、鄉村雙創園、園藝社區),以園藝產業為主導產業,構建完善的產業鏈條,促進園藝產業發展,做園藝產業 4.0 的先行者。
根據浙江省花卉、中藥材等產業的“十三五”發展規劃要求,通過園藝科技示范園、都市農業公園等項目建設,創建浙江省現代花卉苗木示范區和浙江省特色中藥材良種繁育基地,打造現代園藝產業融合發展樣板區。通過與國內外農業科研機構的合作交流,聚焦園藝科技、種苗科技產業,探索產學研合作機制,開展園藝科技研發、孵化、推廣,努力建設成為國家級園藝科技集成孵化平臺。

一心:
綜合管理中心,以服務園區、服務三農為理念,承擔日常管理、游客服務、產品展銷、電商物流、科技研發、教育培訓、創新創業等功能,引導園區健康有序發展。建設內容:公共服務中心、雙創服務中心、農資服務中心。


兩帶:
高速景觀帶:彩色珍稀森林建設,沿杭長高速兩側約 100 米范圍內打造多彩變化的高速景觀帶;在可視范圍內種植大面積景觀作物田,帶來視覺沖擊力,引導游客園區入口位置;在可視范圍以外,以彩色珍稀苗圃為主,提高隔離帶的生態效益。


濱水景觀帶:貫通園區水系,并對水系進行生態治理,采用生態駁岸,修建游憩步道、木棧道、觀景臺等設施,結合蘆葦、菖蒲等水生植物造景,營造親水、生態、多樣的花湖水岸;采用生態駁岸方式,通過喬灌草合理搭配,形成穩定植物群落;采用木棧道、碎石路等方式建設濱水步道;增加蘆葦蕩、菖蒲田、荷花池等景觀節點,提升濱水景觀的豐富性。


四區:
園藝科技示范園:收集保存長三角地區特色珍稀植物資源,打造特色中藥材和花卉的種苗繁育、生產示范基地,建設種子中心、生物中心、組培中心等科技項目,聚集科技要素,構建種苗科技產業鏈,發展種源農業、生物農業、智慧農業,用科技踐行“兩山”思想。建設內容:中藥材生產示范區、園藝技術中心、花卉生產示范區。

都市農業公園:
以園藝科技為主題,以農業嘉年華的形式,打造可看、可玩、可學、可體驗的農業公園,兼具生產、示范、休閑等多重功能,采用彩色混凝土結合植物景觀打造,樹立園區形象;作為引爆點,帶動筆架山周邊休閑農業和鄉村旅游的發展,促進產業融合和農民增收。建設內容:游客服務區、現代農業展示館、農耕童話村、水上歡樂園、花林驛站。


鄉村雙創園::
支持返鄉農民、涉農大學生等“農創客”的創新創業活動,提供辦公室、種植基地、技術培訓和管理服務,不斷孵化新農民、新農企;采用物聯網、信息化等先進技術和手段,推進智慧農業生產方式,提升園區科技水平。建設內容:智慧農場基地、家庭農場基地。

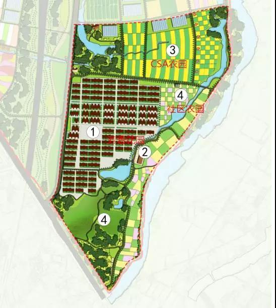
園藝社區:
以社區營造的理念,從人、文、地、景、產五大方面促進吳家山社區的發展,改善社區環境和服務配套,以園藝為主題樹立社區形象風格,對現狀進行適宜改造提升,建設社區公共空間,開展園藝產業、鄉村民宿等,促進鄉村經濟發展。建設內容:CSA 農園、花香農家、社區農園。




